次世代糞乾システム
ハイテムセコノブスーパードライ


円滑な鶏糞処理は優れた鶏舎システムから始まります。
ハイテムセコノブは鶏舎排気を利用する次世代糞乾システムです。
日本では2002年に第一号を導入、2005年には仏ユーロマチック社と
発明者であるレイモンド ・ シャーディン氏から基本特許を購入、
2007年から自社製造しています。


メリット


1. スーパードライ 年間平均水分15%〜20%に
2.
 
糞乾エアパイプ不要
 

 
糞乾電気代30%〜50%カット
衛生的(クリーン)、フィルター掃除不要
3. 1万羽当り6分で充填完了 除糞中に充填完了
4. シンプル  トラブルフリー、耐久性に優れる
5. 無公害型 臭いが少ない、冬期除塵効果


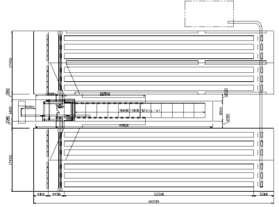
システムの概要


     

生糞を鶏舎に隣接する幅5.5mの建物にコンベアで搬入。生糞を幅4m、長さ1モジュール3mの通風孔付二重デッキ(特許)上に自動スプレッダーで厚さ約20cmに敷きつめる。
1モジュール5,000〜7,000羽用で(生糞水分、気候条件から計算)、例えば3万羽用であれば1モジュール6,000羽計算の場合15m長となります。
二重デッキ下は高さ1.4mの陽圧室となっていて、ここに年間平均羽当り2.3m3/時(冬場の換気量相当)の鶏舎排気を送り込みます。
生糞は24時間で水分15〜20%のスーパードライ乾糞になります。
スーパードライセコノブ乾糞は、農地還元、発酵処理の水分調整用、発電燃料、温水ボイラー燃料等、今後多岐にわたる活用が期待されます。







ハイテムセコノブ稼動写真
2003年5月中部地区D農場


ハイテムセコノブ(左側建物)及び新トンネルハイテムサルメット鶏舎


エアパイプをなくしたクリーンシリーズケージ


鶏舎排気取入口(右側)


生糞充填(手前)
乾糞ミキシング(奥のオーガー)


短時間(1万羽当り6分)で充填される
ミキシング後の鶏糞(水分約50%)


水分50%に混合された混合糞を充填中のワゴン


充 填 完 了



陽圧室及び乾燥糞搬出中の搬出スクレーパ


生糞充填、乾糞ミキシング、乾糞取出、鶏舎
排気等全てのコントロールを行う制御盤 


仕上がり乾糞水分15〜20%のスーパードライ鶏糞


平面図



断面図



説明図 その1



説明図 その2